外観パース
- 物件名
- サンコート 京都郡苅田町与原
- 価格
- 2,998万円
- 管理費
- 0円
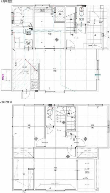
- 建物面積
- 109.10㎡
- 土地面積
- 52.68坪(174.17㎡)
- 築年月
- 2026年4月(予定)
- 総戸数
- -
- 設備条件
-
- 閑静な住宅地
- 宅配ボックス
- 設備(その他)
-
-
-
- 駐車場/月額
- -/-
- 土地権利
- 所有権
- 国土法届出
- 不要
- 用途地域
- 第一種住居
- 取引態様
- 一般媒介
- 現況
- 未完成
- 引渡し
- 2026年4月上旬
-
コンビニエンスストア
セブンイレブン 苅田バイパス店
537m(7分)
-
コンビニエンスストア
ローソン 苅田下新津店
703m(9分)
-
ドラッグストア
ドラッグストアコスモス 与原店
719m(9分)
-
小学校
苅田町立与原小学校
933m(12分)
-
保育園
与原保育園
1084m(14分)
-
ドラッグストア
みなみ調剤薬局
1101m(14分)
-
内科
青木内科クリニック
1113m(14分)
-
中学校
苅田町立新津中学校
1143m(15分)
-
コンビニエンスストア
セブンイレブン 福岡苅田尾倉店
1338m(17分)
-
内科
田添医院
1541m(20分)
-
ドラッグストア
あじさい薬局
1568m(20分)
-
銀行
西日本シティ銀行 ルミエール苅田店
1581m(20分)
-
ディスカウントショップ
ルミエール 苅田店
1594m(20分)
-
保育園
聖母保育園
1611m(21分)
-
小児科
なかむらクリニック
2498m(32分)
サンコート 京都郡苅田町与原の基本情報
サンコート 京都郡苅田町与原の詳細情報
サンコート 京都郡苅田町与原で募集中の物件
近隣の物件
サンコート 京都郡苅田町与原
2,998万円
-
4LDK(109.10㎡)


