外観パース
- 物件名
- 田川市大字伊田12期
- 価格
- 2,698万円
- 管理費
- 0円
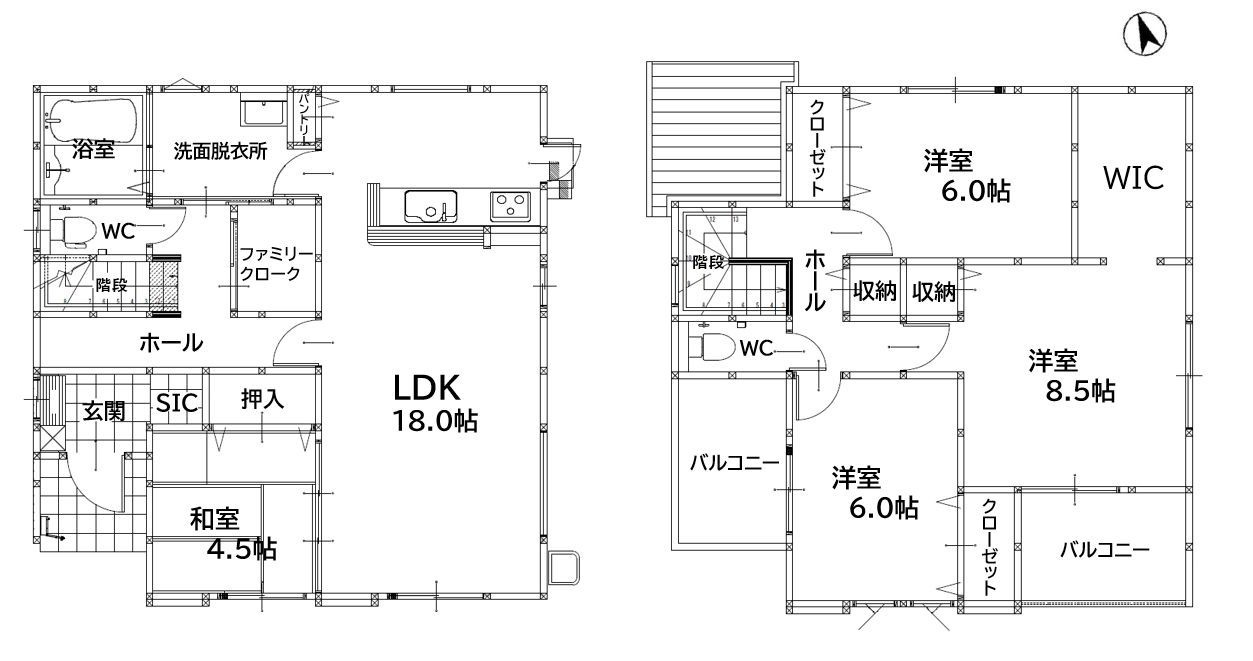
- 建物面積
- 115.53㎡
- 土地面積
- 50.21坪(166.00㎡)
- 築年月
- 2026年6月(予定)
- 総戸数
- -
- 設備条件
-
- 閑静な住宅地
- 駐車3台可
- 設備(その他)
-
-
-
- 駐車場/月額
- 有(3台)/-
- 土地権利
- 所有権
- 国土法届出
- 不要
- 用途地域
- 第一種住居
- 取引態様
- 仲介
- 現況
- 未完成
- 引渡し
- 相談
-
歯科
デンタルケアいまだ歯科
735m(10分)
-
ドラッグストア
ドラッグコーエイ 伊田店
807m(11分)
-
銀行
JAたがわ伊田支所
866m(11分)
-
コンビニエンスストア
ミニストップ 田川香春町店
945m(12分)
-
銀行
田川信用金庫東支店
1162m(15分)
-
内科
松尾ファミリークリニック
1181m(15分)
-
小学校
田川市立伊田小学校
1229m(16分)
-
コンビニエンスストア
セブンイレブン 田川伊田店
1233m(16分)
-
小児科
村田医院
1274m(16分)
-
内科
重藤内科医院
1279m(16分)
-
保育園
無量寺保育園
1303m(17分)
-
公園
鎮西公園
1414m(18分)
-
保育園
田川鎮西保育園
1487m(19分)
田川市大字伊田12期の基本情報
田川市大字伊田12期の詳細情報
田川市大字伊田12期で募集中の物件
近隣の物件
田川市大字伊田12期
2,698万円
-
4LDK(115.53㎡)


