区画図
- 物件名
- 若松区高須東4丁目1期
- 価格
- 3,798万円
- 管理費
- 0円
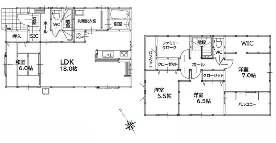
- 建物面積
- 115.08㎡
- 土地面積
- 45.39坪(150.05㎡)
- 築年月
- 2026年7月(予定)
- 総戸数
- -
- 設備条件
-
- 閑静な住宅地
- 駐車2台可
- 設備(その他)
-
-
-
- 駐車場/月額
- 有(2台)/-
- 土地権利
- 所有権
- 国土法届出
- 不要
- 用途地域
- 第一種低層住居専用
- 取引態様
- 仲介
- 現況
- 未完成
- 引渡し
- 相談
-
保育園
高須学童保育クラブ
62m(1分)
-
小学校
北九州市立高須小学校
188m(3分)
-
コンビニエンスストア
ローソン 若松高須東三丁目店
192m(3分)
-
銀行
西日本シティ銀行高須支店
227m(3分)
-
コンビニエンスストア
セブンイレブン 若松高須南1丁目店
232m(3分)
-
内科
久保内科消化器科医院
253m(4分)
-
小児科
あまもと小児科医院
282m(4分)
-
公園
高須公園
336m(5分)
-
スーパー
サンリブ高須
377m(5分)
-
中学校
北九州市立高須中学校
505m(7分)
-
保育園
高須保育園
577m(8分)
-
スーパー
マルショク浅川店
1010m(13分)
-
総合病院
猪熊クリニック
1597m(20分)
-
保育園
利輝保育園浅川園
1622m(21分)
若松区高須東4丁目1期の基本情報
若松区高須東4丁目1期の詳細情報
若松区高須東4丁目1期で募集中の物件
近隣の物件
若松区高須東4丁目1期
3,798万円
-
4LDK(115.08㎡)


